Loft Huberto

Three small wooden houses in a green forest landscape.
©Carina Rebler

Description

Loft-like spaciousness, ...

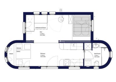
An open fireplace that crackles romantically, a large kitchen with a comprehensive self-catering package: what more could you want! Huberto is the third member of the Steinapiesting ensemble alongside Luna and Ronja. With 36 m2 of living space, it is the big brother in the group and, with a double bed and custom-made sofa bed, offers enough space for families of 2-4 people who want to try out a life reduced to the essentials. A cozy kitchen, the pampering rain shower and an inviting outdoor area between Luna and Ronja make Huberto the perfect place to relax!

Huberto also offers you the opportunity to test the WOHNWAGON self-sufficiency equipment: the large solar panels in combination with infrared heating and a wood-burning stove allow a very high degree of sustainable independence in terms of heat and electricity. The bio-toilet makes you a water-saving pioneer. The green roof also contributes to excellent insulation and indoor temperatures at any time of year.

Huberto is built as a solid wood module "bottomless": 2 elements were craned onto the plot and stand on screw foundations to allow deeper access and save resources for the chassis. This means that the Tiny House does not require any concrete and can be completely dismantled. Thanks to the natural building materials (wood, sheep's wool, clay plaster), you can look forward to a really restful night's sleep: only good things surround you!
A stay in Huberto is intended to inspire sustainable lifestyles and create a cozy place - to switch off and relax, or even to try out sustainable living!

Huberto
- 36 m² with large bay window
- for 1-4 people
- in a quiet valley of Gutenstein next to the Ronja and Luna caravans
- Double bed + corner bench (can be pulled out into a double bed)
- Bathroom with shower, separate toilet and washbasin
- Kitchen area with stove, sink, fridge
- PV system, wood-burning stove
- no W-LAN
- Pets are unfortunately not allowed. We ask for your understanding.

The basic equipment of our caravan includes
- Bed linen & towels
- Shampoo & shower gel
- firewood
- inspiring reading material
- Cooking utensils
- tea, coffee, cocoa, juice
- butter, jam
- Muesli, cornflakes, raisins
- Pasta, rice, vinegar, oil, spices
Only the best, fresh drinking water from the Gutenstein springs flows from our taps.

Request Loft Huberto

Your contact details (name, address, email address, and telephone number) as well as your travel-specific data (arrival/departure dates, number of people, number of children, and children's ages) will be stored by us for the purpose and duration of processing your non-binding inquiry and forwarded to the relevant host/provider for the preparation of an offer. Your data will not be shared with any other third parties. Further information about your rights as a data subject and about us as the data controller can be found in our privacy policy.

Further information about data processing and your rights as a data subject can be found in our privacy policy.

Discover the area

Attractions, hotels, tours & more